星溪園旧建物
熊谷市指定記念物名勝「星溪園」は、竹井澹如が元和年間からある池を中心に名石、石造物を配置して造った名園です。昭和25年に熊谷市が譲り受け、昭和29年に市の名勝として指定しました。
平成2年から4年にかけて園内の整備が行われ、老朽化の見られた建物は、数奇屋感覚を取り入れた上で復元されました。
復元以前の建物を紹介します。
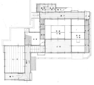
星溪寮
星溪寮は、木造瓦葺切妻造の建物です。床面積103.74uで、慶応年間から明治の初め頃にかけて、他所から移築された最も古い中心的な建物です。玄関入口には湛如翁書「晴好雨奇別乾坤」の木彫額、部屋には藤森大雅書「清慎勤」、古賀精里書「閑情小趣」の扁額が掲げられていました。主室は、8帖の和室、次の間の4帖の和室と3帖の和室からなり、建物の南側に接続して茶室が設置されていました。写真では、亜鉛引鉄板葺きの寄棟建物が茶室と思われます。
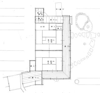
松風庵
松風庵は、星溪寮と積翠閣との間に位置し、渡り廊下で結ばれていました。木造瓦葺寄棟の建物で、明治時代に建てられたと言われています。床面積42.62uで、廻廊とこれに取り囲まれた和室6帖の二室からなる庵室です。南北に連続した2室は襖で仕切られ、必要な時は12帖の大広間として使用しました。
また室内には、湛如翁書「松風庵」の木彫額が掲げられていました。
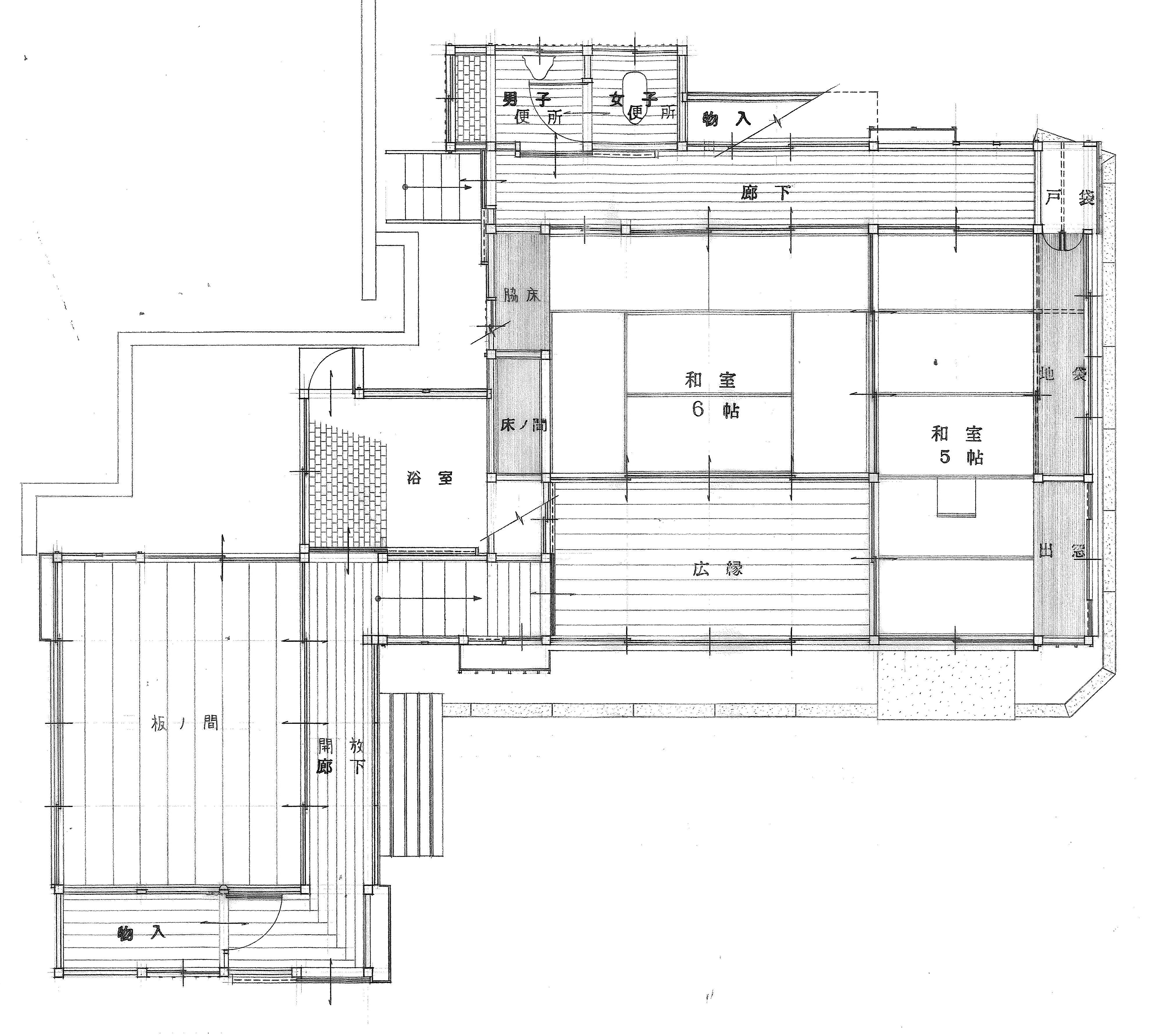
積翠閣
積翠閣は、昭和5年に竹井湛如の長男耕一郎により建てられた、木造瓦葺入母屋造の建物です。床面積57.34uの高床式の建物で、庭園の眺望が良い建物です。
階段で上がると高床式の広縁に続き、奥に6帖の和室と、東側に5帖の和室が設けられ、5帖の和室には、東面に出窓および丸窓が付けられていました。高床部分南側の床下は、当初温室をつくる予定でした。
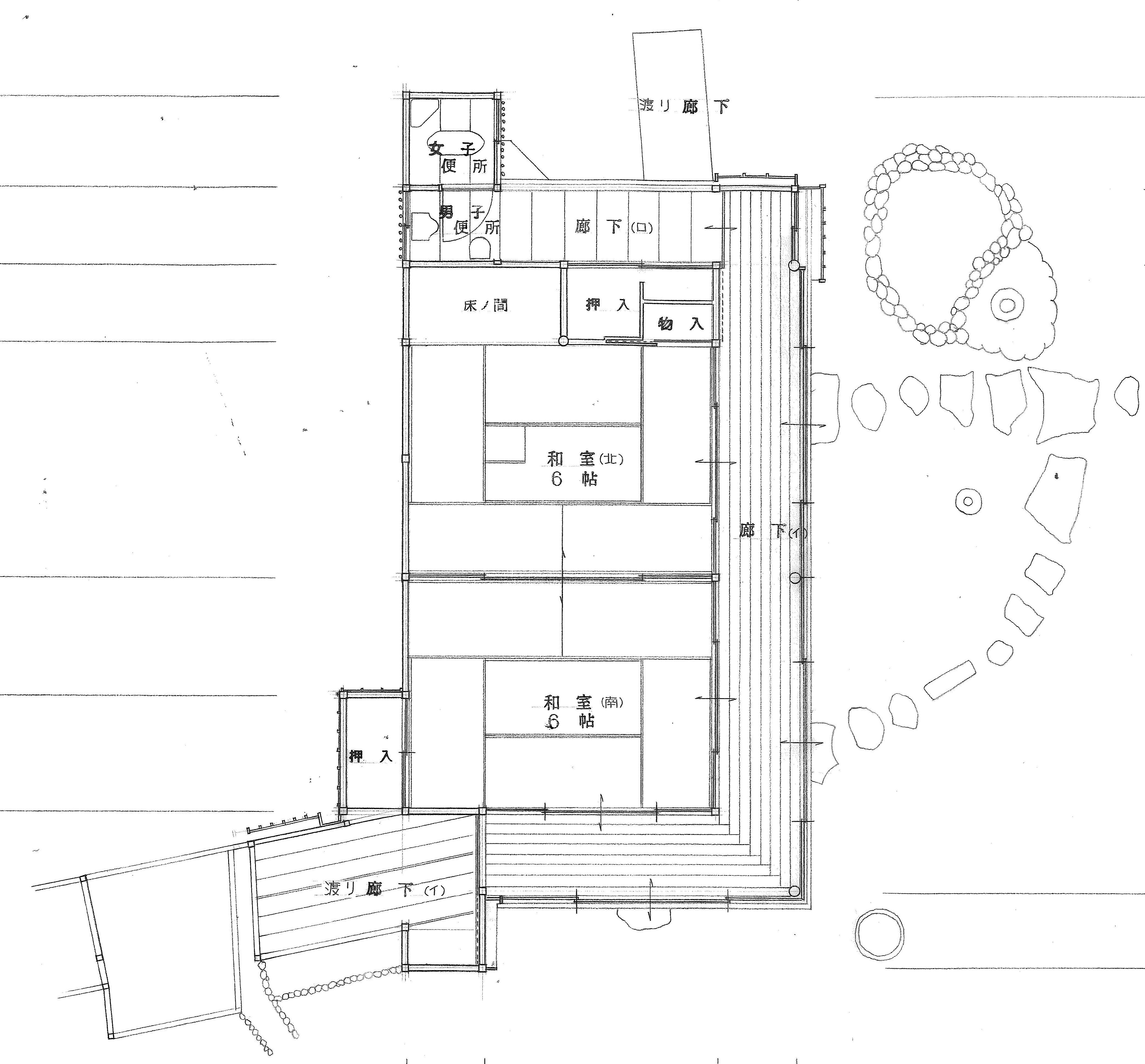
此君亭(しくんてい)
此君亭は、かつて積翠閣東側の玉の池の北東部に面して建てられていた建物で、昭和20年の熊谷空襲により焼失しています。木造瓦葺平屋高床式の建物で、床面積は75.9u余と推測されています。
当初東側の6帖のみの建物で、ここに明治17年昭憲皇太后が立ち寄り休憩しています。その後西側に8帖の和室2室を増築し、大正10年に、秩父宮が宿泊しています。
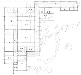
星溪園の図
参考文献
- 『熊谷市指定文化財 星溪園建物概要報告書』昭和63年 (社)埼玉建築士会大里支部 星溪園建物調査委員会




















